| |
Ponta da Falésia
Sagres
2008
con Eduardo Souto Moura
|
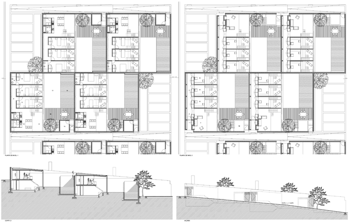
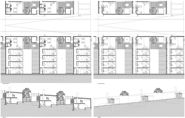
El área de intervención se localiza en una de las extremidades de la “meseta” que en Sagres se prolonga hasta el mar constituyéndose como parte indisociable de la rara belleza natural que caracteriza ese lugar mítico. Presenta una topografía “diseñada” por declives suaves y poco acentuados, orientados esencialmente en la dirección nordeste, proporcionando vistas privilegiadas sobre el mar y la línea de costa de la Ensenada de la Baleeira, estando bastante expuesto a los vientos dominantes, a veces fuertes, y que en el Verano provienen del Norte (nortadas).
El modelo de ocupación propuesto se basa en una matriz de composición que busca sacar el máximo partido de la morfología del terreno y de las excelentes perspectivas sobre el paisaje de las que disfruta.
El tipo de vivienda escogido (casa-patio) no es indiferente a esa opción, ya que es a partir de la propia célula (casa) desde la que se genera todo el sistema que configura el conjunto, ya que las reglas de diseño de uno son también, y necesariamente, las del otro. Se trata de asegurar una fuerte unidad y una cohesión compositiva de todo el conjunto que por sí solo sea capaz de diluir su propia “presencia” en el territorio y, simultáneamente, reforzar una relación que se pretende que sea directa y estrictamente dependiente de la topografía del terreno – con el mar y la línea de costa (Ensenada de la Baleeira) como fondo.
Por eso mismo, las casas se disponen de una forma escalonada en esa dirección (nordeste) de modo a que todas puedan beneficiarse de esas magníficas vistas, aún cuando en el lado opuesto del terreno (suroeste) y ya que el conjunto no quiere perder esa condición topográfica, el “sistema” sea invertido para buscar otras vistas, ahora en la dirección de la Fortaleza de Sagres, pero siempre con el mar como plano de fondo. |
|
 |