| |
Ensanche 27 - Lote 6.25D
Vallecas, España
2006-10 |
Proyectar para un lugar que no existe físicamente, o mejor, que “existe” a partir de un conjunto de normas y reglamentos fijados en un Plan de Urbanización eficiente aunque sin “alma”, se torna siempre difícil y complicado porque el proyecto tiene la tendencia a cerrarse en sí mismo, en un monólogo sordo que lo empobrece y que muchas veces le retira el “alma”.
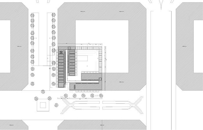
También fue así con este proyecto – una lucha constante consigo mismo para que no se perdiese el diálogo con las circunstancias que lo determinan, incluso cuando esas circunstancias se resumen en aquellas normas y reglamentos, ya que el lugar no es hoy nada más que un inmenso “muelle” cualquier referencia específica a la que el proyecto deba ser sensible.
Pero fue también este contexto, o la ausencia de él, lo que motivó toda la acción de proyecto, cuando la norma es interpretada como si de una preexistencia se tratase, convirtiéndose en el argumento que fundamenta el propio proyecto.
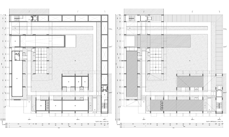
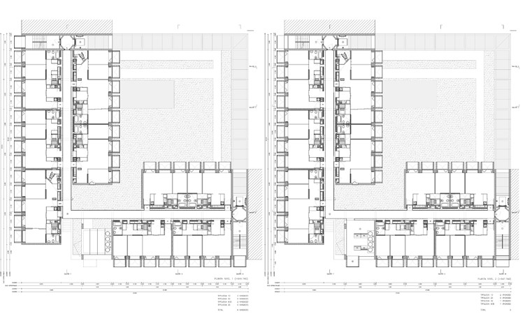
Este modo de encadenar los movimientos y los espacios no busca más que expresar la confrontación, y, simultáneamente, la diferencia entre público y privado, dilatando en el tiempo la transición de uno hacia el otro, para así afirmar la supremacía de aquel sobre este, limitándose, en este caso, lo estrictamente privado al espacio propio de la vivienda.
Es también ese esfuerzo de relación, esa voluntad de hacer ciudad y de tornarla significante, la que hace que el ángulo de lo edificado, la esquina, permanezca parcialmente abierta, permitiendo de este modo la prolongación del espacio exterior público hasta el interior de la manzana y la percepción de los movimientos necesarios para alcanzar las viviendas que se localizan en los pisos elevados.
|
|
 |