| |
Corga
(24 Viviendas Unifamiliares)
Águas Santas - Maia
2006 - 2010 |
La configuración de las casas, además de corresponder a las relaciones establecidas en la urbanización, resulta fundamentalmente de una elección tipológica que a atenúa la presencia y el impacto de su volumetría. La organización secuencial impuesta por la volumetría busca expresar un compromiso entre el conjunto y la repetición de la unidad que lo configura, asumiendo por otro lado la singularidad necesaria para “diseñar” la individualidad que siempre debe estar presente en una intervención de este tipo.
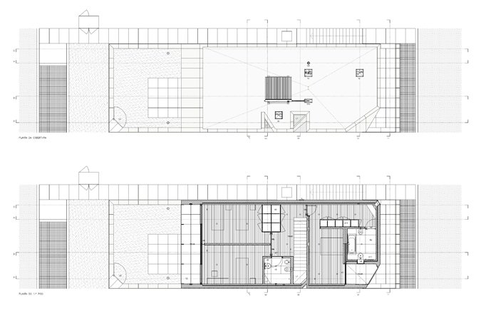
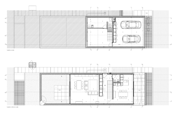
Cada casa resulta del “apilamiento” de tres volúmenes diferentes, pero articulados, correspondientes a cada uno de los pisos: el primero, que está parcialmente enterrado y muestra sólo el lado orientado hacia el frente del solar, se destina al garaje y trasteros; el segundo volumen, configura una base estable, visualmente apoyada y corresponde a las áreas comunes (sala y cocina), en una relación con el exterior abierta y clara - la sala común se extiende y se prolonga hacia el patio exterior mientras que la cocina se abre hacia un balcón exterior; el tercer volumen (zona de dormitorios), apoyado sobre el anterior, “avanza” sobre el mismo en voladizo traduciendo así la idea de levedad estructural – es un volumen más compacto y escultórico, macizo, en el que las aberturas están estratégicamente dirigidas a la búsqueda de relaciones más estrechas y precisas.
Los materiales utilizados (granito, revoco pintado de blanco y aluminio) y su combinación, buscan no sólo tornar explícito el escalonamiento ya mencionado, sino también afirmar el modo como el edificio (cada unidad) se quiere integrar en al conjunto, hasta reconocerse en él. |
|
 |