[en] [es] [pt]

project list

<< >>

 

 

 

project list

<< >>

 
 

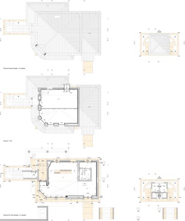
Metro do Porto
Castêlo da Maia Station

Maia Portugal
2001-2007