[en] [es] [pt]

project list

<< >>

 

 

 

project list

<< >>

 
 

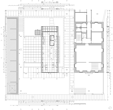
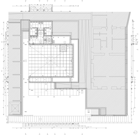
Tourism House
Ponte de Lima
2000-2005