|
LNIV (Laboratorio Nacional de Investigacion Veterinaria)
Vairão, Vila do Conde
1991 - 1998 |
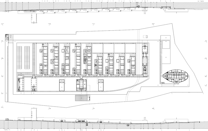
Situado num território de largos horizontes, desenhado por grandes campos de exploração agrícola e por aglomerados dispersos, o projecto, pela dimensão e complexidade do programa, aproxima-se do significado que esses aglomerados adquirem na pontuação da paisagem.
A fragmentação dos corpos que o compõem tenta desenhar a permeabilidade capaz de esboçar um equilíbrio entre o edifício e a paisagem - no modo como se tocam, como se deixam ser e ao mesmo tempo se dão a ler.
Equilíbrio esse que, não iludindo a dimensão real do edifício, deve também encontrar fundamento na identidade de cada segmento do programa, cuja expressão formal é indissociável da razão que dá sentido ao conjunto.
O seu ordenamento resulta da capacidade de tipificar elementos e assim construir a regra que permite estabelecer a repetição e a excepção.
Repetir significa melhor identificar a unidade, revelando a sua capacidade de variação dentro da mesma regra para integrar expansões futuras. O seu princípio de desenho resulta também da necessidade de modelar o terreno.
Assim, o desenho da unidade é o desenho do próprio terreno e assenta na vontade de articular a escala do lugar com a escala do território.
A excepção confirma a identidade de cada unidade, fixando a escala do conjunto através do estabelecimento de um referencial que oriente a multiplicidade de leituras de aproximação ao lugar.
A matriz de desenho que temos vindo a explicar é ela mesma a razão de ser da composição espacial do edifício.
Condensar a complexidade programática, de estrutura e de infraestrutura, significa produzir um espaço cujo desenho se vai obtendo pela convergência dos vários níveis de informação.
O espaço é protagonista - quando a sua essência transcende o significado das partes que o configuram.A concepção formal, longe de se deter numa qualquer pré-figuração de imagens limitativa da investigação que o projecto deve veicular, admite, pelo contrário, que a síntese formal é o resultado criativo da manipulação equilibrada de todos os elementos que informam a especificidade do programa de trabalho.
A forma é afinal o modo de expressar arquitectonicamente esse conjunto de condicionantes.
|
|
 |