[en] [es] [pt]

lista de proyectos

<< >>

 

 

 

lista de proyectos

<< >>

 
 

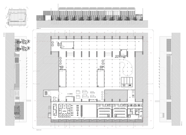
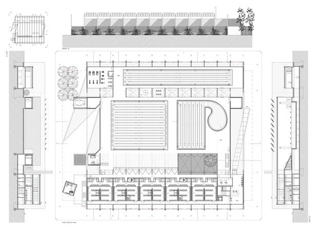
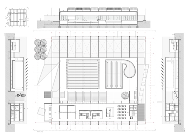
Piscinas de Marinha Grande
Marinha Grande
2010

 

 

 

El edificio es concebido como un gran contenedor, encintado por la estructura, en la cual pilares y vigas se funden, en un único elemento, constituyendo un todo indivisible de grandes dimensiones. Son como grandes “costillas” que crean una “caja” que sirve para acoger los “órganos” de los que se compone el programa. Es la multiplicación de estas piezas la que, además de generar el propio edificio, define también la relación de sus espacios interiores con el exterior, en una permeabilidad recíproca que se pretende que sea disciplinada y no inmediata.

La repetición de un mismo elemento constructivo permitirá la introducción de discretas variaciones que posibilitan el establecimiento de una complicidad en su articulación. La unidad del todo podrá entonces existir a partir de elementos aislados, como imagen prevaleciente del conjunto.

La volumetría, independientemente de su mayor o menor diversidad, tendrá en la repetición del elemento arquitectónico, estructuralmente presente, su punto de convergencia, pero también el fundamento de su diferencia y también la garantía de su particularidad.