| |
Casa en Calle Tomé de Sousa
Porto
2001 - 2009 |
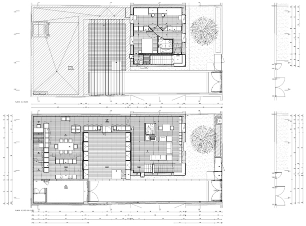
La intervención efectuada en el edificio y en el terreno existente busca preservar en lo esencial las características que los definen y que el municipio pretende que sean salvaguardadas.
Independientemente de su valor estético y/o patrimonial es un hecho que el tipo de barrio en el que se insertan marcó una época y una forma de vida de las que tal vez valga la pena dejar un registro de su memoria.
Es en este contexto en el que la intervención propuesta debe ser entendida. Se trata finalmente de conseguir con que aquello que ahora se añade, independientemente de que sea una expresión de su tiempo, no se sobreponga, en su lógica, a una existencia anterior.
Es exactamente en la articulación entre los dos cuerpos edificados (la casa preexistente y el contiguo) donde se sitúa la nueva entrada de la casa y es ahí también cuando todo adquiere un nuevo sentido, cuando el espacio entre ambos se constituye en el centro – un patio que agrega todo y donde todo puede acontecer.
El resto se quiere que sea sobrio y discreto, y por ello no merece ser descrito. No sea que la descripción se convierta en narrativa, sabiendo que la narrativa siempre impide la objetividad y tiende a fijarse en lo accesorio… |
|

|