[en] [es] [pt]

project list

<< >>

 

 

 

project list

<< >>

 
 

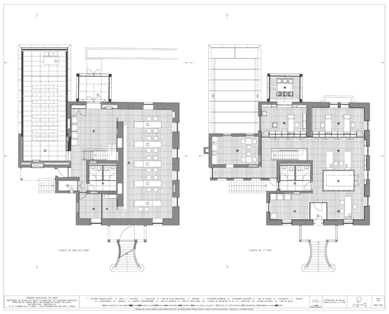
Quinta da Gruta Urban ParkHomestead Remodelling
Vila da Castêlo, Maia
1999-2001

The intervention on the space and building of the Quinta da Gruta Estate is not recuperation, certainly not a restoring operation.  More than a simple rehabilitation, the idea is to reconvert where once it was necessary to exclude, relocate and redefine, as a way of erasing the marks of the successive interventions that were superimposed over the years without any nexus nor any relationship among them.

It is with this foundation that all of the projects development concentrates on an almost archaeological study of the site, not as a way of restoring a past, but, on the contrary, as a way of recognising its past essence, of rediscovering its relations, and using them to establish a conceptual plan capable of converting in “matter” the other spaces and buildings.
It is not the parts of the Estate that are relevant here, but the sense that unites them and the relative importance that they keep between them – all should be reconfigured in one indivisible whole, the building and the garden converted into one unique entity.

This is because, as always, transformation only truly occurs, even when violent, when it does not provoke ruptures, interruptions or gaps, and when it is able to express itself in continuities.

Transforming means, in this case, having the ability to generate from a position further back, retreat to its origins to find reason, motive, so that all can be established in the sequence of a memory.

Memory that arises interest only as an affirmation of contemporaniety and as an unmistakable sign of the connection between past and present.
Beyond all this, exists a beautiful garden with trees of significant stature, even more…  a surprise.