| |
Environmental Education
Complex - School
Câstelo, Maia
1999-2008 |
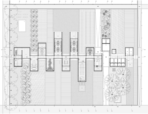
The Estate, in its present configuration, already posses its own “house”.
The school, as a building, should be a house without being the house of then estate – its presence should extinguish rather than impose itself.
Its condition relatively to the existing and now transformed house is that of a secondary element, as if a supplementary building, whose form results from the exterior and the relation of dependence that it wishes to keep with it.
Everything should be simple and direct as it has always been in rural constructive tradition.
This, because a house is always, merely and only, a house… |
|
 |