[en] [es] [pt]

lista de proyectos

<< >>

 

 

 

lista de proyectos

<< >>

 
 

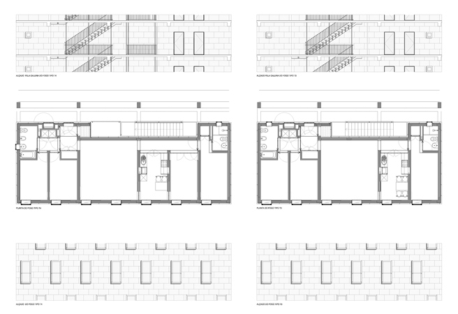
Penela
Portugal
2007 - 2012