[en] [es] [pt]

lista de proyectos

<< >>

 

 

 

lista de proyectos

<< >>

 
 

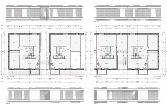
Viviendas Colectivas S. Marçal Oeiras
Oeiras