| |
Água Santas - Vivienda Colectiva
Maia
1998 - 2002 |
El volumen propuesto, al respetar en la esencialidad de su forma los alineamientos establecidos, no quiere afirmar otra cosa que no sea el refuerzo de la jerarquía urbana en la que se insiere – quiere participar en ella, cogiendo de ella los argumentos que necesita para su propio diseño.
La tensión que caracteriza el lugar que ocupa, es la razón de ser de su acontecer – la aparente tranquilidad de su imagen no representa más que la conciencia de esa misma tensión, sin eludirla, pero por lo contrario, asumiéndola como suya.
La búsqueda del sentido, que siempre debe acontecer en una composición arquitectónica, explica la visión que se quiere dar a la diversidad funcional que, inevitablemente caracteriza un edificio de viviendas de este tipo – su materialización no debe ignorar esa diversidad, pero puede organizarla en categorías, proponiendo un orden que defina una jerarquía, un ritmo y una secuencia.
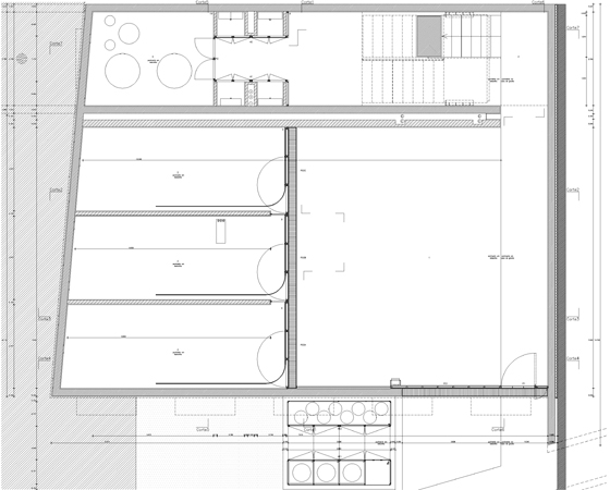
Así, el piso inferior (sótano) puede ser visto como un podio “naturalmente “ adaptado a la pendiente del terreno y que sirve de soporte a los restantes niveles del edificio.
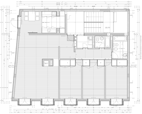
Los tres pisos superiores, integralmente ocupados por viviendas, se configuran en base a un único elemento que se expresa de una forma más abierta y más transparente, dejando presentir a través de la simplicidad de su geometría la complejidad que contiene.
El rigor aplicado en el diseño de este dos elementos de composición no es más que un esfuerzo de precisión en la forma de articularlas dentro de un cuerpo único, conexo e inteligible.
|
|
 |